Atom S 快速开始(10 自由度双足机器人)
1. 产品简介
1.1 项目定位
项目名称:Fashion Star Atom S 10-DOF Open Source Robot Kit
Atom S 是一款完全开源的 10 自由度(DOF)人形机器人套件,面向机器人开发者、创客及教育机构,提供一个低成本、高扩展性的硬件平台。整机采用 10 颗 Fashion Star RA8-U25H-M 总线伺服舵机作为核心动力系统,并配合高度集成的电子架构,为后续的二次开发、动作设计和功能扩展预留了充足空间。
1.2 核心特性
- 自由度配置:整机 10 DOF,覆盖头部、手臂及腿部关节。
- 关节执行器:Fashion Star RA8-U25H-M 总线伺服舵机 × 10,支持总线通讯,布线简洁。
- 结构与外观:采用全 3D 打印结构,官方开源 STP / STL 模型文件,便于部件替换、结构强化与外观再设计。
- Web 可视化动作编辑器:提供免安装网页端控制平台,支持实时舵机调试与示教模式编程。动作组可导出为标准
.json文件,便于 Arduino、STM32、树莓派等主控平台解析与集成。 - 开箱即用:标配 Seeed Studio XIAO ESP32S3 与 Grove 扩展板,出厂已预置完整控制固件,完成组装后可直接通过 Web 端遥控进行快速验证。
- 生态扩展能力:借助 Seeed Studio XIAO 扩展板上的 Grove 接口,可快速接入视觉、环境感知等 Grove 生态传感器与控制模块。
- 跨平台兼容性设计:标配 RUC-01 驱动转接板,提供 5V / 3.3V 稳压输出与通用 UART 通讯接口,方便外接 Raspberry Pi、STM32、Arduino、ESP32 或 PC 平台。
1.3 规格参数
| 项目 | 参数 |
|---|---|
| 自由度(DOF) | 10 |
| 机身 | 3D 打印,结构数据开源 |
| 舵机 | 标配 RA8-U25H-M 总线伺服舵机;孔位兼容,支持升级至 RP8-U45H-M / RX8-U40H-M |
| 舵机电源接口板 | RUC-01(提供 4 路总线接口、5V / 3.3V 逻辑供电、UART / Grove 通讯接口) |
| 标配主控 | Seeed Studio XIAO ESP32S3 + Seeed Studio XIAO 扩展板 |
| 通讯协议 | 异步串行通讯(UART) |
| 兼容控制器 | Raspberry Pi、STM32、Arduino、ESP32、PC(需配套 USB 转 TTL 模块) |
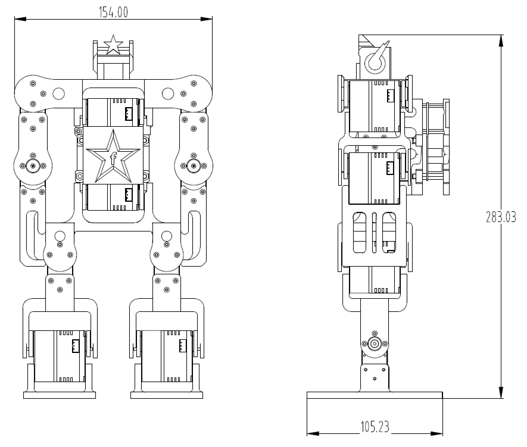
| 尺寸 | 154 × 105 × 283 mm |
2. 开箱即用(快速上手指南)
Tip
Atom S 出厂时已烧录基础控制程序并完成初始装配。只要准备好电源和一台智能手机,即可快速体验机器人的动作与遥控功能。
2.1 硬件供电准备
由于物流限制,套件出厂默认不含电池。开始体验前,请准备一块兼容电池,并接入机器人背部电源接口:
- 电池规格:3S 12.6V 航模锂电池
- 电池接口类型:T 插(T-Plug)
- 上电确认:接通电源后,主控板(XIAO ESP32S3)上的指示灯会亮起,表示系统已启动
2.2 Web 端遥控器连接
请使用智能手机或具备蓝牙功能的 PC 终端开启蓝牙,并根据操作系统选择合适的浏览器。由于 Web 遥控依赖底层 Web Bluetooth API,浏览器兼容性非常关键:
- PC 端(Windows / macOS):请使用 Google Chrome 或 Microsoft Edge
- Android 端:请使用 Google Chrome,不要使用系统自带浏览器或微信扫码打开
- iOS 端:Safari、Chrome 和 Edge 均不支持网页蓝牙功能,请前往 App Store 下载支持 WebBLE 协议的第三方浏览器,例如 Bluefy
- 访问地址:
https://wiki.fashionrobo.com/ps2v2/
2.3 蓝牙配对与初始化
- 打开 Web 遥控页面后,点击界面上方的 SYSTEM LINK 按钮。
- 在弹出的蓝牙设备列表中,选择名为 ESP32_Pro_Remote 的设备并点击配对。
- 配对成功后,网页会显示“已连接状态”。
- 此时机器人会自动执行一次“鞠躬”动作,并恢复到默认站立姿态,说明系统已经准备就绪。
2.4 开始你的第一次“连续动作”示教
通过 Web 虚拟手柄,即使不编写代码,也可以快速教机器人完成一段连续动作:
- 环境准备:点击左上角的 HOME 键,确保机器人处于标准初始站立姿态。
- 解锁关节:点击左上角的 RELAX 键,使机器人进入阻尼模式。此时所有伺服舵机卸力,可以手动摆动各个关节。
- 记录第一帧姿态:手动摆好第一个姿态后,点击方向键 左 ◀,记录当前姿势。
- 记录后续动作帧:继续改变机器人姿态,再次点击 左 ◀。重复该操作,即可记录一连串动作帧,默认最高支持记录 100 帧。
- 连续播放动作序列:全部姿态记录完成后,点击方向键 右 ▶,机器人会平滑回放刚才记录的所有动作。
- 调整运行速度:如果回放过快或过慢,可点击 上 ▲(加速)或 下 ▼(减速)调整动作速度。
- 一键演示:点击右侧 方形键 □,可直接播放出厂内置的默认演示动作。
Tip
如果你已经完成快速体验,并希望进一步导出动作 JSON、修改主控逻辑或接入其他控制器,请继续阅读后续章节。
3. 硬件架构与机械结构
3.1 驱动与电源管理(RUC-01 接口板)
RUC-01 接口板是整机的动力枢纽,负责总线通信管理与电源分配:
- 舵机通讯:板载 4 路总线舵机接口,支持串联扩展,负责总线伺服舵机的信号与供电。
- PC 调试接口:集成 USB Type-C 接口,可直接连接 PC 上位机进行动作组编辑与调试。
- 系统供电:负责电压转换,并为主控板提供稳定的电源输入。
- 通讯接口:提供标准 UART 串口,用于接收上层主控板的控制指令。
3.2 逻辑主控与扩展(MCU + Grove Shield)
主控与扩展部分是机器人的“大脑”,负责运行控制算法与传感器数据处理:
- 核心主控:采用 Seeed Studio XIAO 系列开发板,体积小巧,性能强大。
- 生态扩展:配套 Grove 接口扩展板,引出丰富的通用接口。
- 主要功能:运行机器人运动学程序,并通过 Grove 接口无缝连接各类传感器,实现更多交互功能。
3.3 通用通讯接口说明(跨平台开发必看)
虽然套件默认采用 XIAO ESP32S3 作为主控,但 RUC-01 接口板对所有外部控制器都是开放的。主控与 RUC-01 之间仅需 4 根线,即可完成基础通信:
- 5V / 3.3V:RUC-01 可向主控反向提供稳定电源
- GND:共地端
- RX / TX:标准异步串行通讯(UART),用于收发控制指令与读取舵机反馈
3.4 数据流向说明
调试 / 编辑模式(Debug Mode)
PC --(USB)--> RUC-01 --(总线)--> 舵机
说明:通过电脑端软件直接调节舵机角度并保存动作组,不经过主控板。
自主运行模式(Autonomous Mode)
Web 遥控端 / 传感器 --(信号)--> ESP32 / 树莓派 / STM32 等主控
--(UART 指令)--> RUC-01 --(总线)--> 舵机
说明:主控根据传感器反馈或预存代码,自主控制机器人行动。
| 编号 | 接口说明 | 编号 | 接口说明 |
|---|---|---|---|
| ① | 整机电源开关 | ⑤ | 转接板通讯 UART / Grove 接口(连接主控 ⑧) |
| ② | 电源输入接口 | ⑥ | 主控 ESP32S3 Type-C 数据接口(程序下载) |
| ③ | 舵机接口 × 4 | ⑦ | Seeed XIAO ESP32S3 主控板 |
| ④ | Type-C 数据接口(舵机调试,连接 PC) | ⑧ | 主控板通讯 UART / Grove 接口(连接 RUC-01 接口板 ⑤) |
Warning
RUC-01 接口板 ④ 号 Type-C 接口附近的拨动开关,以及图示左侧的两个 Type-C 接口均为预留或作他用,本项目中无需使用,请避免误操作。
3.5 机械结构与关节寻址
为确保底层代码能够准确驱动对应的物理关节,系统对全身 10 个自由度进行了明确的 ID 寻址与零位姿态标定。
结构分布与舵机 ID 映射
整机 10 颗伺服舵机共享同一条控制总线,因此每颗舵机都拥有唯一的数字 ID(0~9)。
Tip
后续在使用动作编辑器或编写 JSON 动作数据时,数据中的 id 字段必须与下图中的物理关节位置严格一一对应,否则会导致动作错乱。
标定零度姿态
零度姿态是机器人运动学解算的基础基准位。当主控下发全机 0 度指令,或用户点击 Web 控制台的 HOME 复位键时,机器人应呈现下图所示的标定站立姿态。
Tip
受 3D 打印件装配公差影响,整机装配后可能存在轻微姿态偏斜。请在确认零度姿态后,前往底层源码中的 ROBOT_RESET_POSITION_0 ~ 9 参数区进行软件级微调补偿。
4. 自定义动作开发核心工作流(Web 动作编辑器)
Note
动作编辑器的详细操作步骤,请参阅单独发布的《动作编辑器独立说明文档》: 点击查看 Robot Studio 使用手册
Web 版动作编辑器在线地址:https://wiki.fashionrobo.com/uartbasic/robotstudiopro/
为了让开发者更清楚地理解“如何让机器人执行自定义动作”,整套工作流可以概括为以下三个阶段:
4.1 姿态设计与数据导出(Web 动作编辑器)
- 连接与读取:通过 PC 浏览器连接 RUC-01 接口板,实时读取机器人舵机状态。
- 解锁与示教:将舵机一键卸力进入阻尼模式,手动摆动机器人并记录每一帧姿态。
- 编排与微调:调整各关键帧之间的执行时间与间隔,并在软件端实时回放以优化动作连贯性。
- 导出 JSON:确认动作无误后,将整套动作组导出为标准
.json文件。
4.2 数据集成与固件烧录(ESP32 主控端)
- 打开源码:在 Arduino IDE 中打开配套的 ESP32 主控工程源码。
- 替换代码:将导出的
.json数据完整复制,替换Robot.ino文件中原有的jsonData变量内容。 - 编译烧录:重新编译工程,并将更新后的固件烧录至 ESP32S3 主控板中。
4.3 无线遥控与触发运行(Web 遥控终端)
- 无线连接:打开手机 Web 端遥控器
https://wiki.fashionrobo.com/ps2v2/并与机器人配对。 - 一键触发:点击界面上的 方形键 □(指令
0x10),机器人即可脱离数据线,自主且连贯地执行刚刚设计的动作序列。
5. 标配主控固件烧录指南(基于 Seeed Studio XIAO ESP32S3)
Tip
本节仅适用于标配 XIAO ESP32S3 主控环境。若你的项目使用 STM32 或 Raspberry Pi,请直接参考附录中的多平台 Fashionstar 舵机控制 SDK。
5.1 开发环境搭建(Arduino IDE)
前往 Arduino 官网下载并安装最新版 Arduino IDE,推荐使用 Arduino IDE 2.x 版本。
5.2 导入 ESP32 硬件支持包
请先打开 Arduino IDE 的首选项设置:
- Windows:
File > Preferences - macOS:
Arduino IDE > Settings...或Preferences...
在“附加开发板管理器网址(Additional Boards Manager URLs)”中填入以下链接:
https://raw.githubusercontent.com/espressif/arduino-esp32/gh-pages/package_esp32_index.json
5.3 部署 ESP32 编译环境(严格版本要求)
- 打开
Tools > Board > Boards Manager - 搜索
esp32 - 找到由
Espressif Systems提供的安装包 - 手动指定安装 3.3.5 版本
Warning
请不要直接安装最新版本。当前工程依赖的蓝牙与总线驱动组合要求使用 3.3.5 版本,否则可能导致蓝牙或总线通讯编译失败,或运行异常。
5.4 安装功能依赖库(ArduinoJson 与 ArduinoBLE)
系统依赖以下第三方库实现 JSON 解析与蓝牙服务:
ArduinoJsonArduinoBLE
安装方法:
- 打开
Sketch > Include Library > Manage Libraries... - 搜索并安装
ArduinoJson - 搜索并安装
ArduinoBLE
5.5 部署 Fashion Star Servo 核心驱动 SDK
为保证底层驱动正常调用,需要手动安装官方 SDK:
- 从配套资料包中找到
fashionstar-uart-servo-arduino-sdk-V2.rar - 解压缩该文件
- 将整个 SDK 文件夹复制到 Arduino 默认库目录下
默认库路径:
- Windows:
C:\Users\用户名\Documents\Arduino\libraries - macOS:
~/Documents/Arduino/libraries
复制完成后,请彻底关闭并重新打开 Arduino IDE,使其重新加载本地库。
5.6 选择开发板与编译烧录
- 使用 Type-C 数据线将 XIAO ESP32S3 连接到电脑
- 打开
Tools > Board > esp32,选择XIAO_ESP32S3 - 打开
Tools > Port,选择主控板对应端口
端口命名通常表现为:
- Windows:
COM3、COM5等 - macOS:
/dev/cu.usbmodem...或/dev/cu.usbserial...
最后在 Arduino IDE 中打开项目源码(.ino),点击左上角 Upload 按钮,等待控制台显示“上传成功”即可。
6. 底层控制参数配置规范(基于标配主控 Seeed Studio XIAO ESP32S3)
在 Arduino IDE 中打开工程源码后,可按实际项目需求修改以下宏定义与常量。请确认参数所在文件,避免误改。
6.1 基础硬件参数(位于 Control.h)
BAUDRATE:主控与 RUC-01 通讯的串口波特率SERVO_NUM:机器人舵机总数量
/* 用户可修改机器人数据区域 */
/* define */
#define BAUDRATE 115200 /* 波特率 */
#define SERVO_NUM 10 /* 舵机的总个数 */
6.2 UART 物理引脚重映射(位于 Robot.ino)
TX_PIN / RX_PIN:ESP32S3 与 RUC-01 转接板通讯所使用的串口引脚
/* 串口1--GPIO D6=GPIO43 D7=GPIO44 */
#define TX_PIN 43
#define RX_PIN 44
6.3 Web 遥控蓝牙通讯参数(位于 Robot.ino 与 Control.h)
BLE_NAME:蓝牙广播名称SERVICE_UUID / CHARACTERISTIC_UUID:Web 端遥控器与主控建立通讯所依赖的服务 UUID 与特征 UUID
/* 设置蓝牙名称 */
BLE.setLocalName("ESP32_Pro_Remote");
/* ESP32的服务UUID以及特征UUID */
#define SERVICE_UUID "4fafc201-1fb5-459e-8fcc-c5c9c331914b"
#define CHARACTERISTIC_UUID "beb5483e-36e1-4688-b7f5-ea07361b26a8"
6.4 示教模式参数说明(位于 Control.h)
MAX_ACTIONNUM:示教模式允许记录的最大动作帧数量Default_RobotRunSpeed_Demonstration:默认运行速度MIN / MAX_RobotRunSpeed_Demonstration:速度调节上下限Adjust_RobotRunSpeed_Step:每次加减速度的步进值
#define MAX_ACTIONNUM 100 /* 最大示教动作组数量 */
#define Default_RobotRunSpeed_Demonstration 1000 /* “默认”的示教运行速度 */
#define MIN_RobotRunSpeed_Demonstration 5000 /* “最慢”的示教运行速度 */
#define MAX_RobotRunSpeed_Demonstration 500 /* “最快”的示教运行速度 */
#define Adjust_RobotRunSpeed_Step 200 /* 调节示教运行速度的步进值 */
6.5 按键数据及命令宏定义说明(位于 Control.h)
无线遥控通讯中,Web 遥控端会将按键状态打包为两个独立变量发送:
btn_Main:主操作区按键btn_border:系统控制区按键
因此,部分十六进制指令可能在不同区域重复出现,但它们对应不同变量,不会冲突。
/* 蓝牙遥控器命令--根据不同的命令自行更改功能需求--用户根据实际情况进行更改 */
/* 以下指令对应 btn_Main (映射图中的红色十六进制标注) */
#define RemoteControl_DefaultDemoAction 0x10 /* 默认演示动作指令 (方形键) */
#define RemoteControl_Exe 0x08 /* 示教模式执行指令 (方向键 右) */
#define RemoteControl_Record 0x04 /* 记录动作帧指令 (方向键 左) */
#define RemoteControl_ReduceRunSpeed 0x02 /* 减少示教运行速度 (方向键 下) */
#define RemoteControl_AddRunSpeed 0x01 /* 增加示教运行速度 (方向键 上) */
/* 以下指令对应 btn_border (映射图中的黄色十六进制标注) */
#define RemoteControl_Damping 0x04 /* 阻尼/卸力模式指令 (RELAX 键) */
#define RemoteControl_Reset 0x08 /* 机器人复位指令 (HOME 键) */
6.6 动作组数据挂载区(位于 Robot.ino)
将动作编辑器导出的 .json 数据复制到 jsonData 变量中,注意保留 R"( 和 )";:
/* 默认表演动作 */
const char* jsonData = R"(
[
// 请将动作编辑器导出的JSON数据完整覆盖粘贴到这里
{"angles":[{"id":0,"angle":0},{"id":1,"angle":0} ... ],"time":2000,"delay":500}
]
)";
6.7 JSON 缓存分配大小(位于 Control.cpp)
如果动作序列过长,可能会导致运行时内存不足或 JSON 解析失败。此时可适当增大 DynamicJsonDocument 容量:
/* 创建JSON文档对象,分配足够的空间 */
DynamicJsonDocument doc(4096);
必要时可根据动作复杂度调大至 8192 或更高。
6.8 机器人复位角度参数及零点补偿说明(位于 Control.h)
ROBOT_RESET_POSITION_0 ~ 9:分别对应 0 号至 9 号舵机的零位初始角度
Tip
由于机械装配公差,每台机器人的绝对零位可能略有偏差。建议在机器人站立姿态验证后,对这些参数进行微调补偿。
/* 机器人复位角度设置--用户根据实际情况进行更改 */
constexpr float ROBOT_RESET_POSITION_0 = 0;
constexpr float ROBOT_RESET_POSITION_1 = 0;
constexpr float ROBOT_RESET_POSITION_2 = 0;
constexpr float ROBOT_RESET_POSITION_3 = 0;
constexpr float ROBOT_RESET_POSITION_4 = 0;
constexpr float ROBOT_RESET_POSITION_5 = 0;
constexpr float ROBOT_RESET_POSITION_6 = 90;
constexpr float ROBOT_RESET_POSITION_7 = 0;
constexpr float ROBOT_RESET_POSITION_8 = -90;
constexpr float ROBOT_RESET_POSITION_9 = 0;
7. Web 端遥控终端功能字典与底层映射
Tip
关于浏览器兼容性和蓝牙配对基础步骤,请先参考本文档第 2 章。本章主要用于说明控制界面中的按键布局与底层十六进制映射关系,方便后续二次开发。
7.1 系统控制区(对应代码变量:btn_border)
该区域主要位于界面顶部和两侧边缘,用于控制机器人的全局状态:
- HOME(
0x08):中断当前动作,使机器人恢复到默认标定站姿,并清空当前内存中的示教数据 - RELAX(
0x04):进入阻尼 / 卸力模式,释放全部舵机锁止力矩,便于手动示教 - 其他黄色标注按键:如
L1、L2、R1、R2、L3、R3等,在当前出厂 Demo 中默认未分配动作,可由开发者自行扩展
7.2 主操作区(对应代码变量:btn_Main)
主操作区包含方向键与右侧功能键,主要负责动作编排与执行:
- 方向键 左 ◀(
0x04):记录当前动作帧 - 方向键 右 ▶(
0x08):回放当前记录的动作序列 - 方向键 上 ▲(
0x01):增加运行速度 - 方向键 下 ▼(
0x02):降低运行速度 - 方形键 □(
0x10):执行主控 Flash 中预存的jsonData默认动作 - 其他红色标注按键:如
△、○、×等,在当前固件中默认未定义,可在底层代码中自行映射
8. 常见工程故障排查
8.1 固件烧录无响应 / 假死状态
- 现象:Arduino IDE 提示
A fatal error occurred: Failed to connect,或上传过程中卡死 - 修复方法:
- 保持 USB 数据线连接
- 长按开发板上的 BOOT 键
- 点击 IDE 中的 上传 按钮
- 当控制台出现
Connecting...或开始显示传输进度时,释放 BOOT 键
8.2 Web 终端无法枚举蓝牙设备
- 现象:点击“寻找设备”后,蓝牙设备列表为空
- 排查方向:
- 检查是否使用支持
Web Bluetooth API的浏览器 - Windows 用户确认系统版本不低于 Win10(1703+)
- macOS 用户检查系统“隐私与安全性”设置,确认浏览器蓝牙权限已放行
8.3 关节无力 / 无法锁止
- 现象:固件运行正常,通讯也已建立,但机器人无法有效支撑负载
- 排查方向:
- 检查 3S 电池电量与放电能力是否充足
- 检查总线排线是否存在虚接、反接
- 若更换过舵机,确认全机 10 个舵机的 ID(0~9)是否与工程定义一致,避免 ID 冲突
附录与开发资源
- Fashionstar 官方技术 Wiki:
https://wiki.fashionstar.com.hk - Web 动作编辑器使用说明:Robot Studio 使用手册
- Web 端蓝牙遥控说明:蓝牙遥控器使用说明
- 提供 STM32 / Python / ROS / C++ / Arduino 等多平台舵机控制 SDK












